Design and Drafting
We provide expert design and drafting services for all our clients, ensuring projects stay on budget and on schedule. Detailed and accurate drawings are essential for avoiding unexpected costs, minimizing delays, and keeping every stage of construction running efficiently. Clear documentation helps builders, suppliers, and trades work seamlessly together, reducing errors and ensuring your project is completed on time and within budget. We offer flexible service options to suit your needs. Whether you require design and documentation only or a full turnkey design-and-build solution, we can tailor our approach to your project. From concept to completion, we ensure a smooth process, high-quality results, and a stress-free experience. If you have opted for a turn-key solution for your project, the same expert who designs your project will also manage it through the building process, ensuring seamless execution and consistency. This hands-on approach sets us apart, keeping your renovation on track, on budget, and stress-free.
Process
We have 15 years of experience in design and building carefully carefully thought out and crafted spaces, we understand that every project is different and that every client has different needs, each space we design is distinctive. Simply call us with your renovation need and we will be happy to discuss your requirements in detail, providing you with expert advice and feedback. When you are ready for a consultation, we will visit your home for an obligation free initial quote.
We carry this collective knowledge forward and apply it to every brief, ensuring that we prioritise your needs. During your consultation we will develop a proposed concept cost plan based on your design or preferred design and style for your assessment and consideration.
We will refine your design and fineness the finer details. We will present you with the final design and highly detailed specification in readiness for the technical drawings phase.
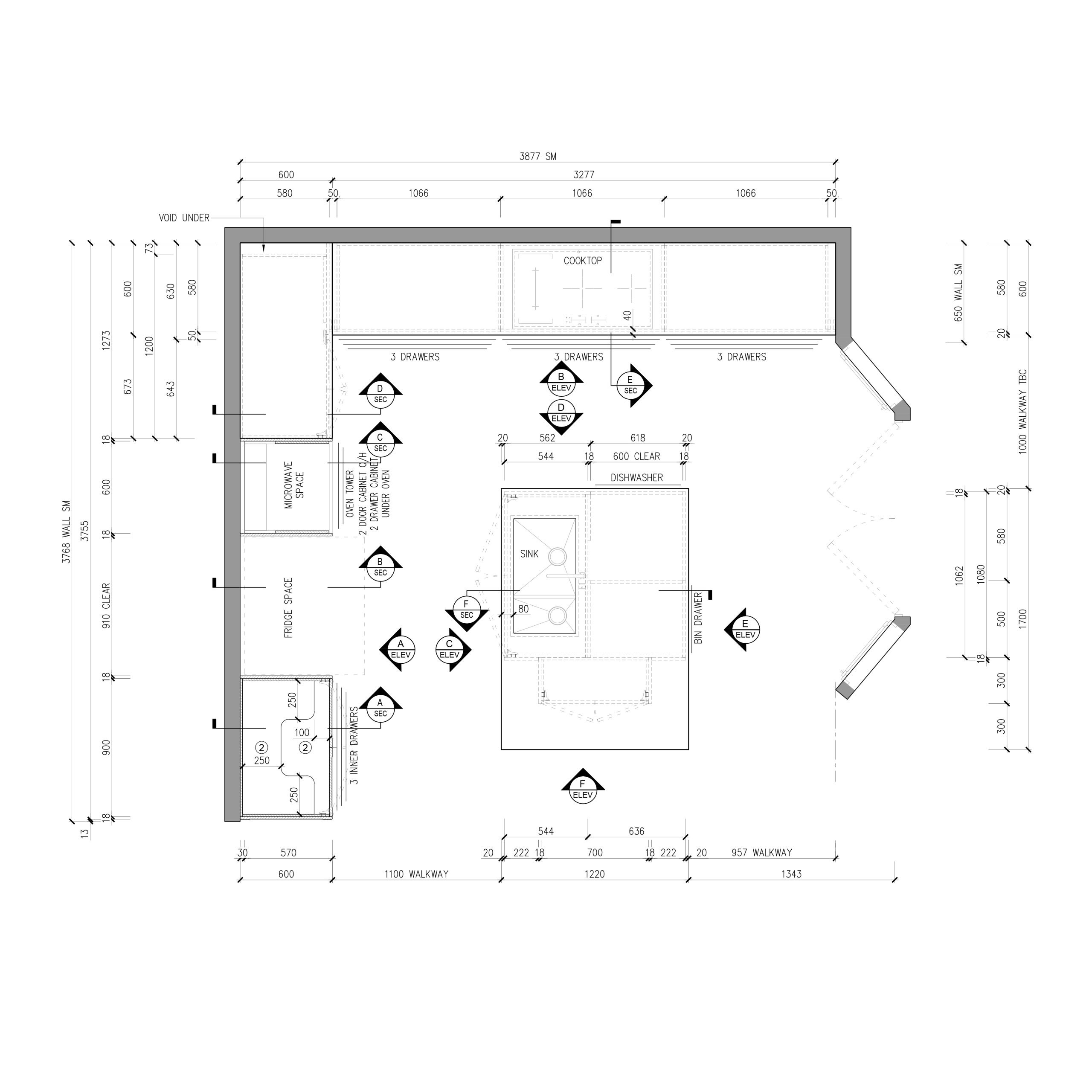
Our team is proud to share a wealth of expertise, particularly in the areas of design expertise. We will develop your design as well as a scope of works and a comprehensive set of construction drawings including specifications, appliances fixtures and fittings, joinery layouts, lighting layouts as well as other documents to facilitate your renovation works.
We’ve eliminated all the stress from the construction process by providing you with a dedicated project manager who will supervise every phase of the project, walk you through the entire procedure, and serve as your single point of contact to guarantee a seamless. If you require the removal of your old kitchen or bathroom, consider it included as part of our service.
The most satisfying aspect of any renovation is the assurance that you’ve engaged licensed builders and skilled tradespeople who will provide the necessary warranties, certificates of compliance and compliance with Australian Standards and Building Regulations.
Book Your FREE In-Home Consultation and Secure Your Start Date!
We offer complimentary in-home consultations to help kickstart your renovation journey!
Our expert design team will work closely with you to create the perfect bathroom or kitchen tailored to your vision.
Now is the perfect time to discuss your bathroom, kitchen, or laundry renovation and secure your start date for 2025.
Plan ahead and book your free in-home consultation today!



